海まで7分!90坪超えの敷地 車複数台駐車可能
8,800万円
横須賀線「逗子」駅バス13分京急バス「向原(葉山町)」停歩5分
京急逗子線「逗子・葉山」駅バス5分京急バス「向原(葉山町)」停歩5分
【展望】開放感ある眺望
- 価格
- 8,800万円
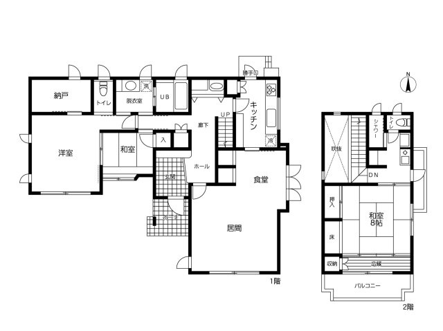
- 間取り
- 3LDK
- 土地面積
- 307.48㎡
- 建物面積
- 127.01㎡
- 築年月
- 1999年11月(築26年)
- 販売戸数
- -
- 総戸数
- -
- 間取り / 詳細
- 3LDK
- 向き
- -
- 建物面積(坪数)
- 127.01㎡(38.42坪)
- 土地面積(坪数)
- 307.48㎡(93.01坪)
- 建ぺい率 /
容積率 - 50%/100%
- 築年月
- 1999年11月(築26年)
- 駐車場 /
月額料金 - 有 -
- 土地権利
- 所有権
- 土地
(敷金 / 保証金) - - / -
- 建物構造
- 木造 / 2階建
- 傾斜地部分面積
- -
- 路地状敷地
- -
- 私道負担面積
- -
- セットバック
- 無 記載なし
- 高圧線下面積
- -
- 施工会社
- -
- 用途地域
- 第一種低層住居専用
- 地目 / 地勢
- 宅地 / -
- 接道状況
- 一方(南 公道 3.0m)
- 国土法届出要否
- 不要
- 都市計画
- 市街化区域
- 総区画数 /
販売区画数 - -/-
- 現況
- 居住中
- その他
法令上の制限 - 景観法/宅地造成規制法・葉山まちづくり条例
- 取引態様
- 専任媒介
- 引渡し
- 相談
- 取引条件の
有効期限 - 2025年11月16日
- 設備条件
-
- 陽当り良好 / 閑静な住宅地 / 眺望良好 / プロパンガス / 公営水道 / 公共下水 / 駐車3台可 / システムキッチン / トイレ2ヶ所 / 床下収納 / ウォークインクロゼット / 収納豊富
- 設備(その他)
-
-
-
- 物件番号
- 98572266
- 管理コード
- -
- 建築確認番号
- -
- 情報更新日
- 2025年11月02日
- 次回更新予定日
- 2025年11月16日
- 備考
- 湘南「葉山」の物件は、地元在住のスタッフにお気軽にお問い合わせください。
・橋の使用料(年間33.600円)。 -
その他
森戸川
207m(3分)
-
スーパー
もとまちユニオン葉山店
233m(3分)
-
図書館
葉山町役場 図書館
241m(4分)
-
スーパー
旭屋牛肉店
396m(5分)
-
その他
森戸海水浴場
537m(7分)
-
幼稚園
明照幼稚園
538m(7分)
-
ドラッグストア
クリエイトSD 葉山堀内店
541m(7分)
-
その他
森戸川(風早橋)
569m(8分)
-
公園
あじさい公園
601m(8分)
-
公園
堀内児童遊園
632m(8分)
-
小学校
葉山小学校
800m(10分)
-
バス停
真名瀬バス停
817m(11分)
-
消防署
葉山町消防署
971m(13分)
-
市役所・区役所
葉山町役場
1058m(14分)
-
中学校
葉山中学校
1459m(19分)
-
美術館
神奈川県立近代美術館葉山
2083m(27分)
- 月々の支払額
- 9.6円
- 購入希望物件価格
-
万円
- 頭金
-
万円
- 金利
-
%
- 返済額(ボーナス1回分)
-
万円
- 返済期間
-
年
セールスポイント
全室南向き・森戸海岸徒歩7分・駐車複数台可・スーパーマーケット徒歩圏内・閑静な住宅街・WIC・全居室収納・ミニキッチン有・セカンドハウス利用・90坪超
ポイント
担当者のコメント
基本情報
設備条件
その他
周辺施設
支払いシミュレーション
※ボーナスは自動で年2回分で計算されます。
近隣の物件
海まで7分!90坪超えの敷地 車複数台駐車可能
8,800万円
-
3LDK(127.01㎡)




葉山 エリアマネージャー
複数台駐車可能・全室南向き・森戸海岸へ徒歩7分・閑静な住環境です。
セカンドハウス利用されていますので室内綺麗です。
湘南エリアの「海が見える物件」や「海が近い物件」の情報は、地元在住の私にお任せください。おすすめスポットもこっそりお教えいたします!