【6500万円】和と自然が調和した伝統工法建築住宅
鎌倉市稲村ケ崎 戸建






西側2階建ての玄関












現地より約350m

現地より約350m

■土地面積...212.80㎡(公簿)
※セットバック部分約7.4m含む
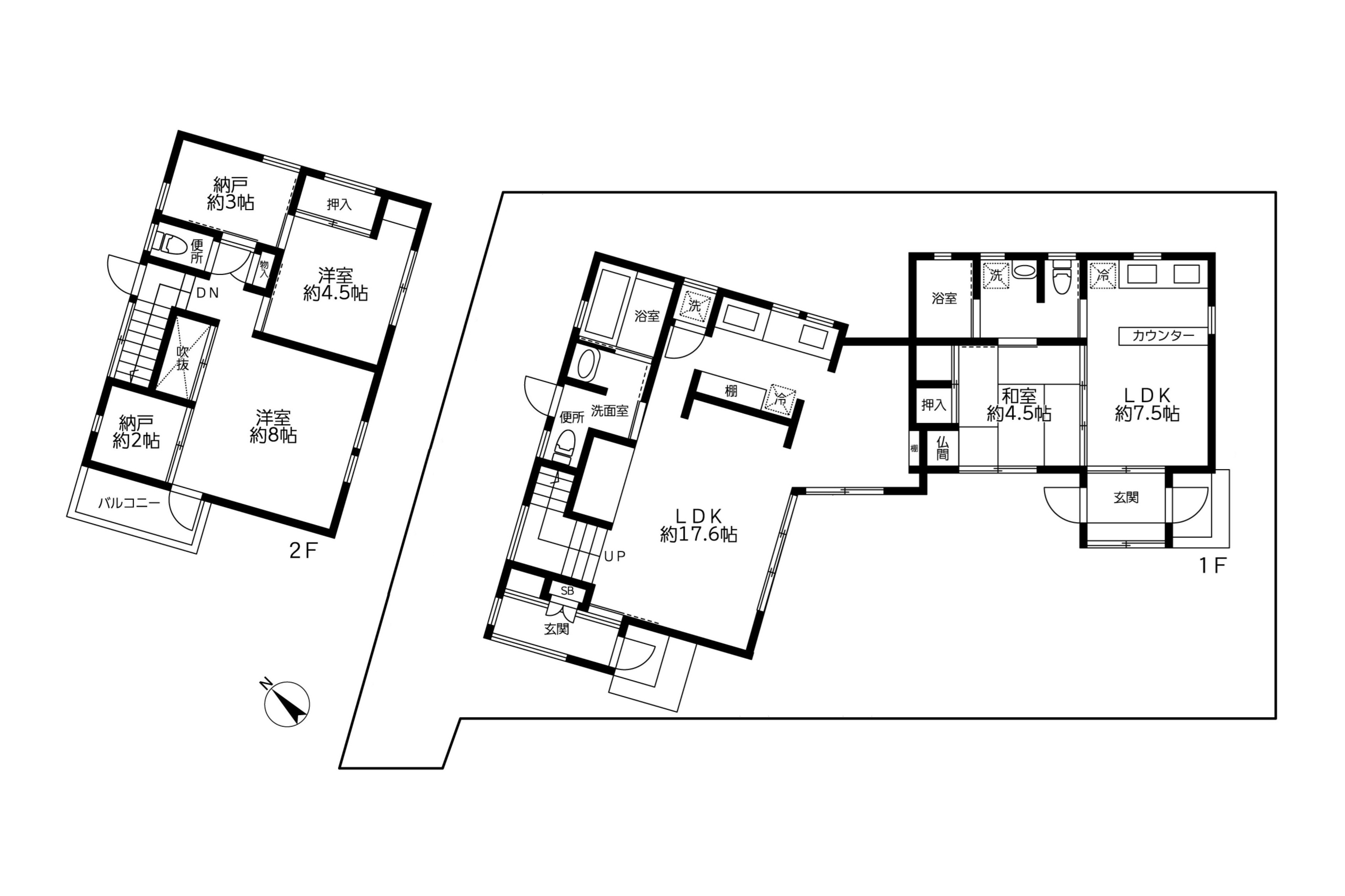
■建物面積...119.04㎡
■土地権利...旧法借地権
■借地期間...新規20年
■借地料......21,242円/月
■都市計画...市街化区域
■用途地域...第一種低層住居専用
■建ぺい率...40%
■容積率......80%
■構造.........木造瓦葺2階建て
■間取り......2LDK+2S、1LDK(二世帯住宅)
■築年月......2010年4月
■接面道路...南東側公道 幅員約2.67mに約11m接道
■その他の法令
・景観法
・第2種風致地区
・宅造成工事規制区域
・文化財保護法
■設備・公営水道
・公共下水
・オール電化
■現況.........居住中
■引渡日......相談
■備考
・契約不適合責任免責
・境界非明示
・専用住宅以外での利用不可
・借地に関する諸条件あり
■所在地......鎌倉市稲村ガ崎1丁目
■交通
・江ノ電「極楽寺崎」駅 徒歩7分
・江ノ電「稲村ケ崎」駅 徒歩9分



