【外観】閑静な住宅街
- 物件名
- 海まで徒歩15分!鎌倉中心地の大型邸宅
- 価格
- 9,830万円
- 建物面積
- 144.11㎡
- 土地面積
- 65.55坪(216.70㎡)
- 築年月
- 1960年1月(築66年)
- 総戸数
- -
- 設備条件
-
- 閑静な住宅地
- 海が近い
- 設備(その他)
-
-
-
- 駐車場/月額
- 有/-
- 土地権利
- 普通賃借権
- 国土法届出
- 不要
- 用途地域
- 第一種中高層住居専用
- 取引態様
- その他
- 引渡し
- 相談
-
幼稚園
ハリス記念鎌倉幼稚園
105m(2分)
-
クリニック
かまくらファミリークリニック
195m(3分)
-
その他
鎌倉市福祉センター
202m(3分)
-
スーパー
やまか鎌倉店
280m(4分)
-
図書館
鎌倉市中央図書館
318m(4分)
-
ファーストフード
フレッシュネスバーガー 鎌倉由比ガ浜店
323m(5分)
-
警察
鎌倉警察署
442m(6分)
-
喫茶店・カフェ
J.S. BURGERS CAFE 鎌倉店
491m(7分)
-
喫茶店・カフェ
スターバックスコーヒー鎌倉御成町店
531m(7分)
-
その他
由比ガ浜の街並み
570m(8分)
-
その他
御成通り
588m(8分)
-
中学校
鎌倉市立御成中学校
602m(8分)
-
駅
JR「鎌倉」駅
610m(8分)
-
市役所・区役所
鎌倉市役所
789m(10分)
-
小学校
鎌倉市立御成小学校
797m(10分)
-
公園
鎌倉海浜公園
930m(12分)
-
ドラッグストア
クリエイト薬局 鎌倉材木座店
1070m(14分)
-
公園
材木座たぶのき公園
1498m(19分)
海まで徒歩15分!鎌倉中心地の大型邸宅の基本情報
海まで徒歩15分!鎌倉中心地の大型邸宅の詳細情報
海まで徒歩15分!鎌倉中心地の大型邸宅のコメント(おすすめポイント)
JR横須賀線「鎌倉」駅より徒歩約6分。
江ノ電「和田塚」駅より徒歩約6分。
●物件の特徴や設備●
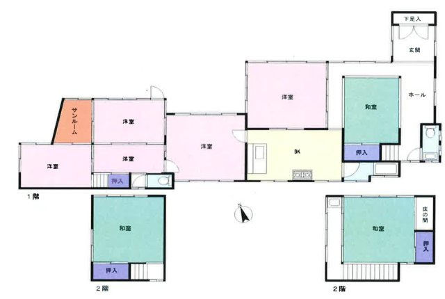
海近 駅近立地 2駅2路線利用可 8DK+サンルーム 和室あり 閑静な住宅街
湘南への移住や買い替え、リゾート用地にセカンドハウス、海を望む物件や海が近くの物件など、海辺の暮らしに関するご相談は、海辺の暮らし専門店「湘南海辺不動産」にお気軽にお問い合わせください。
海まで徒歩15分!鎌倉中心地の大型邸宅で募集中の物件
周辺施設
近隣の物件
よく見られている物件
海まで徒歩15分!鎌倉中心地の大型邸宅



