海と共に、暮らす。
森戸、芝崎、一色、小磯、大浜、長者ヶ崎。南北4kmにわたるこの海岸線は「日本の渚・百選」に選ばれています。
ヨットの発祥地でもあり、皇室の別荘や有名人、企業の保養地も多数建てられています。
都内から1時間程とアクセスが良好でありながら、自然と文化が融合する魅力的なエリアです。
【2億5000万円】ビーチフロントの特権

















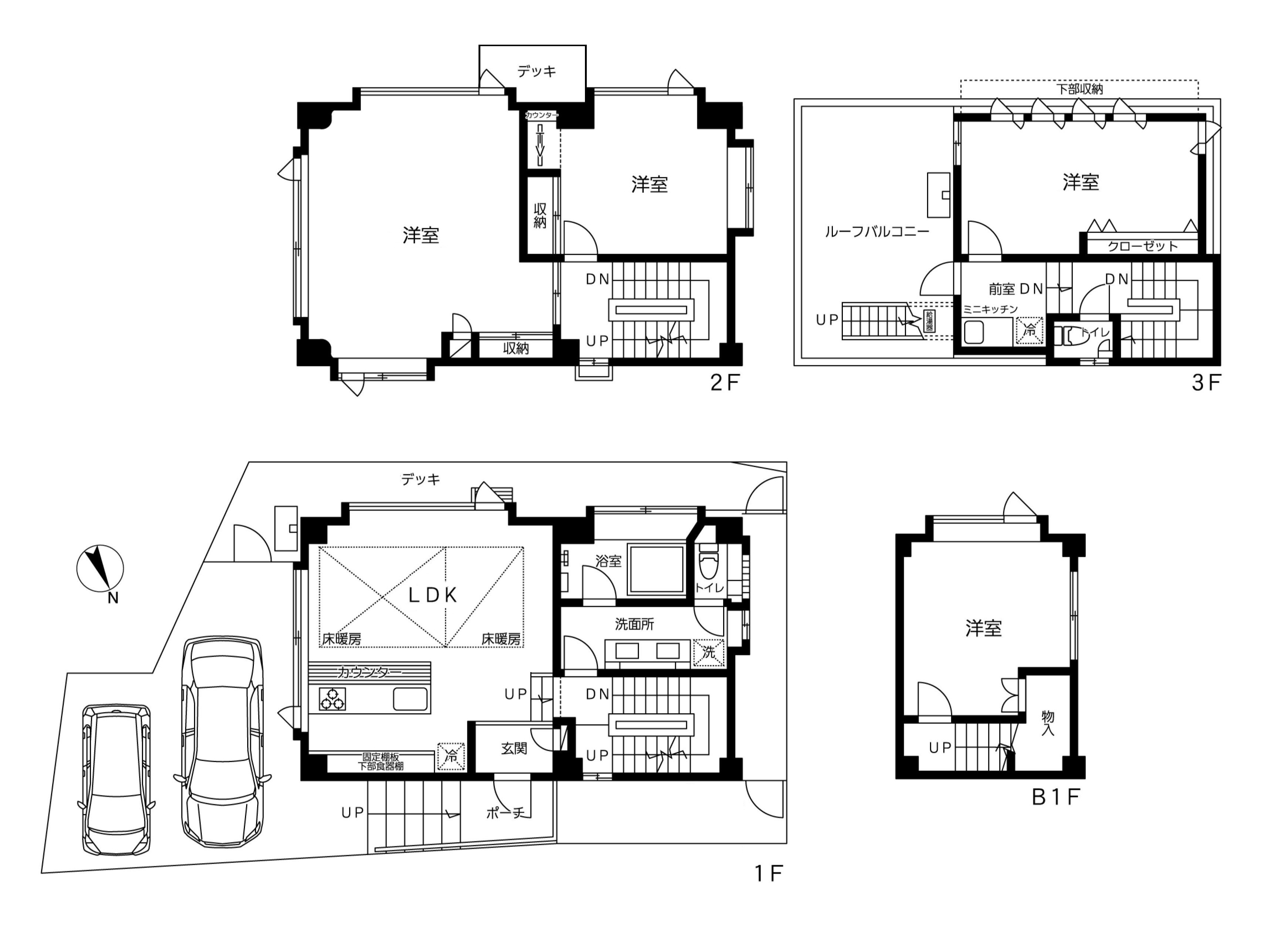
■販売価格...2億5,000万円
■土地面積...119.2㎡(公簿)
■建物面積...97.20㎡(公簿)
■土地権利...所有権
■地目.........宅地
■都市計画...市街化区域
■用途地域...第一種住居
■建ぺい率...60%
■容積率......200%
■構造.........RC造2階建て
■築年月......昭和54年12月
■接面道路...北側公道 幅員約8.7mに約16m接道
■設備
・公営水道
・公共下水
・個別プロパンガス
■その他の法令
・一色第4風致地区(建ぺい率40%以下)
・第一種高度地区(高さ12m以下)
■備考
・建物構造は、登記上「鉄筋コンクリート造陸屋根2階建て」ですが、
3階部分の増築等により現状は「鉄筋コンクリート造陸屋根地下1階地上3階建て」
になっております。
・増築未登記
・3階部分の構造は不明
・契約不適合責任免責
■現況.........空家
■引渡日......即時
■所在地......葉山町一色
■交通.........JR横須賀線「逗子」駅 バス18分「三ケ下海岸」停徒歩2分

相模湾に面し、大楠山を背に持つ自然美溢れるエリア。新鮮な魚や三浦野菜などの地元食材が豊富で、素材にこだわる隠れ家のようなレストランが点在しています。横須賀市の西海岸は、南仏のプロヴァンスを思わせる美しい風景で、洗練さとのどかさを併せ持つこのエリアでは、ゆったりとした時間が流れる“スローリゾート”を楽しめます。

【5500万円】海辺の古民家スタジオ


















■土地面積...1040.49㎡(公簿)
※内、山林(357㎡)含む
■建物面積...166.54㎡
■土地権利...所有権
■地目.........宅地、山林
■都市計画...市街化区域
■用途地域...第1種住居
■建ぺい率...40%
■容積率......160%
■構造.........木造瓦葺2階建て
■間取り......6LDK
■築年月......不詳
■設備
・公営水道
・個別浄化槽
・個別プロパンガス
■接道.........南側公道 幅員約2.5m
■その他の法令
・景観法
・文化財保護法
・急傾斜地法
・宅地造成及び特定盛土等規制法
・第4種風致地区
■現況.........居住中
■引渡日......相談
■備考
・ガス会社の引継ぎあり
・契約不適合責任免責
■所在地......三浦市初声町和田
■交通.........京急久里浜線「三崎口」駅 徒歩31分
JR横須賀線と京急逗子線が通り、横浜まで30分、渋谷まで60分といったアクセスが魅力。
ベッドタウンとして発展し、都心に通いながら自然を楽しむ移住者が増えています。逗子海岸はその浜の長さから「ハーフマイルビーチ」と呼ばれ、駅が近く遠浅で波が穏やかなため、ウィンドサーフィンの聖地としても知られています。
【1080万円】最上階東側のグリーンビュー















日本を代表する観光都市。
鎌倉野菜やしらすなどの特産品、歴史の深い寺社仏閣はもちろんのこと、海や山、四季折々の花々など見どころが豊富です。稲村ガ崎を中心にして東西二つに分かれた鎌倉の海岸は、夏は海水浴場の海の家が建ち並び百万人を越える人出で賑い、磯波を求めてやってくるサーファーで一年中活気を呈します。

【1億4800万円】至福の海景色が広がる丘の上で。













■販売価格...1億4,800万円
■種別.........建築条件なし売地
■土地面積...270.12㎡(公簿)
■土地権利...所有権
■地目.........宅地
■都市計画...市街化区域
■用地地域...第1種低層住居専用地域
■建ぺい率...40%
■容積率......80%
■道路.........北側公道 幅員約4.5mに約11.3m接道
■その他の法令
・景観法
・第2種風致地区
・宅地造成等工事規制区域
・土砂災害警戒区域
・七里ガ浜東五丁目住民協定
■設備
・公営水道
・公共下水
・都市ガス
■現況.........更地
■引渡日......相談
■所在地......鎌倉市七里ヶ浜東5丁目
■交通.........江ノ電「七里ガ浜」駅 徒歩12分
海が見える物件
優しい海の音と心地よい潮風を感じながら目覚め、穏やかな海と星空を眺めながら静かな夜を過ごす。
都会を離れ、海が見える家で自然と調和した心安らぐ暮らしを初めてみませんか。
海が近くの物件
朝日を反射した海を見ながら散歩、テラス席で海を眺めながらランチを楽しみ、休日はマリンスポーツでリフレッシュ。そんなアクティビティとリラクゼーションで満ちた暮らしを初めてみませんか。
1.自分で物件を探す
2.プロに任せる
3.来店相談・内見希望
海辺の不動産査定は専門業者へ。
「海が見える土地」や「海まで歩いてすぐの戸建て」など、湘南の海辺の不動産は一般的な不動産と違います。
私たちは海辺の不動産の価値をしっかりと見極め、お打ち合わせをさせていただいた上で価格算出及び販売方法を決めていただきます。
運営会社:湘南葉山不動産株式会社
茅ヶ崎・藤沢・三浦・横須賀(西海岸以外)に関しては、
HP非掲載のため、スタッフより物件のご提案をさせていただきます。
メールまたはお電話にて、ご希望条件をお知らせください。
tel : 046-877-1008
メール海の見え方(リビングから海を望む。など)や海までの距離、利用目的(家族で移住、セカンドハウス利用。など)その他、具体的なご希望条件をお知らせください。