[成約済] 逗子の細道<逗子の不動産>
※過去に販売された物件の記事です。
小坪 戸建
#海が見える物件
#海まで歩いて5分以内の物件 リビエラ逗子マリーナ入口を、小坪漁港方面へと。
右手に海、左手に山の景色。
山側へと路地を入っていくと、途中から道幅が狭くなる。
この先は軽自動車でないと進入ができない。
その途中にある平成21年築のガレージ付き戸建が今回の物件。
敷地面積約97坪の敷地に海を望む2階建ての注文建築。
南側には、BBQや家庭菜園が楽しめる広い庭。
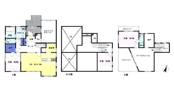
室内は、吹き抜けの開放的なLDK。
パントリーやシューズクローク、ウォークインクローゼットなどの豊富な収納空間。
2階洋室の窓は全開放で、海と逗子マリーナを望むパノラマビューが広がる。
スローライフを満喫できる海辺の家。
車ネックだけクリアできれば、申し分ない物件です。







キッチン裏に収納豊富なパントリー










この奥に対象物件

物件詳細
■土地面積...321.54㎡(公簿)
■建物面積...118.48㎡(公簿)
■土地権利...所有権
■地目.........宅地
■都市計画...市街化区域
■用地地域...第一種住居
■建ぺい率...60%
■容積率......160%
■その他の法令
・準防火地域
・土砂災害警戒区域
■構造.........木造瓦葺2階建
■間取り......3SLDK
■設備
・公営水道
・公共下水
・都市ガス
■築年月......平成21年12月
■現況.........空家
■引渡日......相談
■所在地......逗子市小坪4丁目■交通.........JR横須賀線「逗子」駅 バス15分
「小坪海岸」停徒歩約3分
✆046-877-1008
#海辺の暮らし #湘南 #逗子 #小坪 #不動産 #戸建 #リゾート #海が見える #逗子駅 #新逗子駅



