【9800万円】宮大工が手掛けた和風建築
葉山町堀内 戸建
#海が見える物件
#高台の物件 広い敷地に区画整理されたゆとりある邸宅の並ぶ丘の上。
「東伏見台分譲地」
海抜約80mに位置する今回の戸建て。
南東・北東の角地、敷地面積100坪超えの整形地。
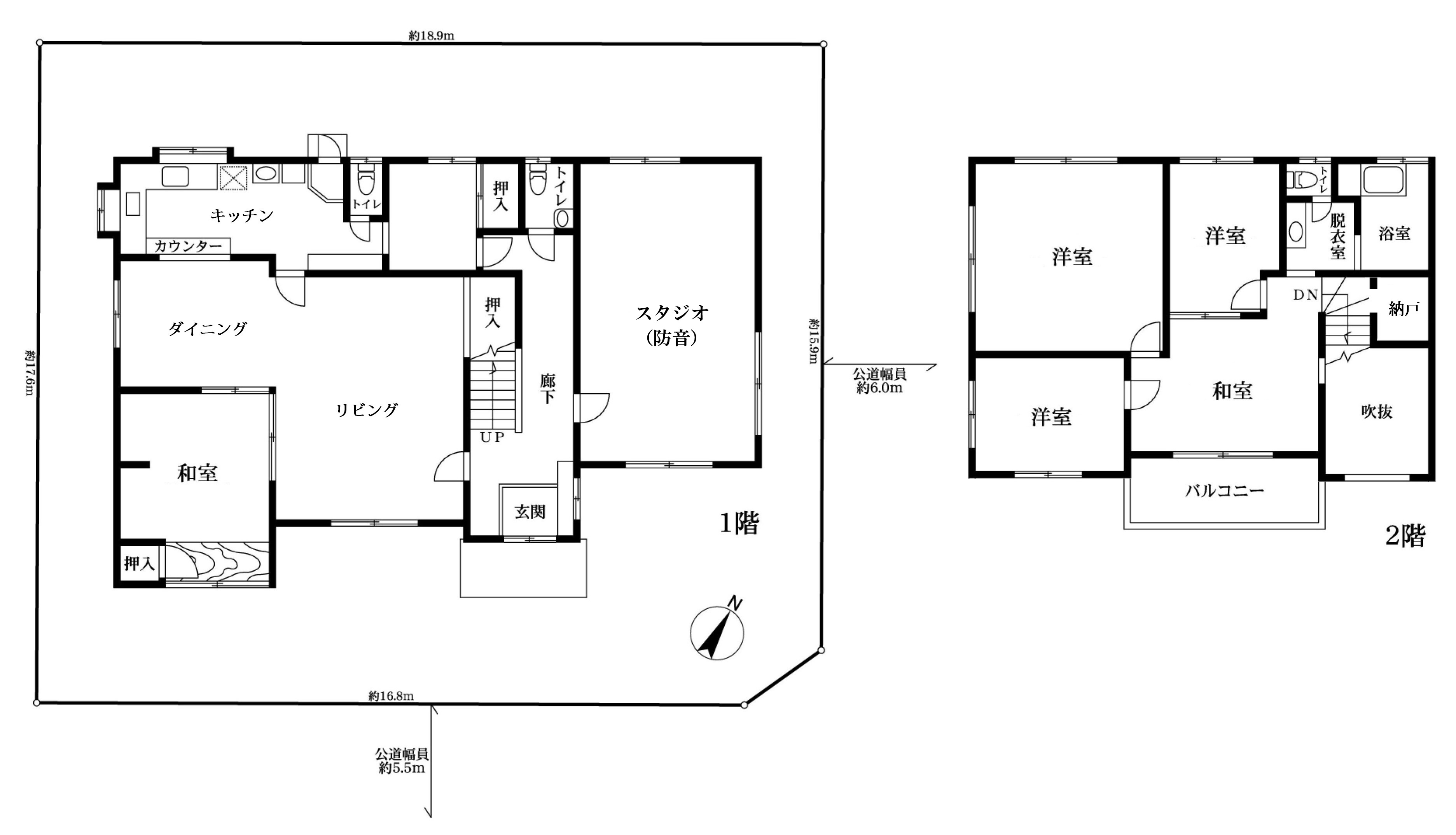
車は車種によるが3台駐車可能。
建物は延床面積約61坪、宮大工が手掛けた1979年築の拘り和風建築。
2024年7月には一部リフォーム工事を実施済み。
・内壁、天井塗装工事
・給排水工事
・屋根防水工事
・断熱材交換
・ユニットバス、2階トイレ新規交換
・畳、障子、新規交換 他
1階は南東側の庭を望むリビングダイニングに和室。
1階の洋室は、ピアノ演奏も近隣に迷惑のかけない防音工事済み。
2階には4つの部屋と小屋裏風の収納スペース。
南東向きのバルコニーからは、海を遠望する景色。
どこか懐かしく、心安らぐ空間の葉山暮らし。
2世代や3世代が同居する大家族や、ゲストを招き入れるセカンドハウスなど。
多用途に利用できる「和」の家を、貴方らしく彩ってみては。








ドアの先は駐車場







※2024年7月に新規交換



物件詳細
■販売価格...9,800万円
■土地面積...337.35㎡(公簿)
■建物面積...202.98㎡(公簿)
■土地権利...所有権
■都市計画...市街化区域
■用途地域...第一種低層住居専用
■建ぺい率...40%
■容積率......80%
■構造.........木造2階建て
※一部RC造あり
■間取り......6LDK
■築年月......1979年11月
■接面道路
・南東側公道 幅員5.5m
・北東側公道 幅員6.0m
■その他の法令
・宅地造成等規制区域
・第4種風致地区
・土砂災害警戒区域
・葉山まちづくり条例
■設備
・公営水道
・集中浄化槽
・都市ガス
■現況.........セカンドハウス利用中
■引渡日......相談
■所在地......葉山町堀内
■交通.........JR横須賀線「逗子」駅 バス9分「葉山小学校」停徒歩8分
類似物件検索
葉山町堀内 海が見える物件海辺の暮らし専門店「湘南海辺不動産」
#海辺の暮らし #湘南 #葉山 #堀内 #不動産 #戸建 #海を望む #逗子駅 #逗子・葉山駅



