【6980万円】災害に強い安心な新築戸建て
逗子市桜山 戸建
#海が近くの物件
#新築の物件
逗子駅と東逗子駅のほぼ中間に位置する「桜山2丁目」エリア。
駅、スーパーなどが平坦徒歩圏の生活便利な住環境。
富士山を望む逗子海岸も平坦で、自転車で約8~9分で行ける距離。
現在建築中の新築戸建て。
★耐震等級3級
★地盤補償20年
★断熱等性能等級5
★省令準耐火構造
★ZEH水準住宅
★一次エネルギー消費量等級6
★第一種換気システム
※詳細は下記画像参照
夏は涼しく冬暖かい、快適性を備えた、災害に強い安心住宅。
南西側道路で陽当りが良く、東側は道路と開けた隣地敷地で開放感のある立地。
至れり尽くせりの贅沢な新築戸建てで、逗子ライフを満喫できる。














現地より約1.9km(自転車で約9分)

物件詳細
■販売価格...6,980万円
■土地面積...149.13㎡(公簿)
■建物面積...116.70㎡(公簿)
■土地権利...所有権
■地目.........宅地
■都市計画...市街化区域
■用地地域...近隣商業地域
■建ぺい率...80%
■容積率......200%
■構造.........木造2階建て
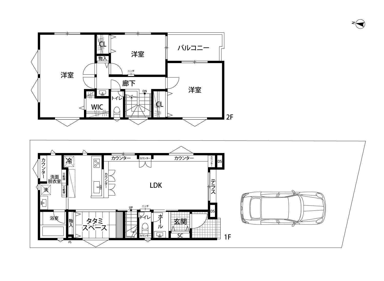
■間取り......3LDK+タタミスペース
■築年月......2026年5月完成予定
■建築確認番号...第25UDI1K建01578号
■設備
・公営水道
・公共下水
・都市ガス
■道路
・南西側公道 幅員約11.0mに約7.1m接道
・東側公道 幅員約0.9mに約22.1m接道
■その他の法令
・景観法
・準防火地域
・一部、都市計画道路
■現況.........建築中
■引渡日......2026年6月予定
■所在地......逗子市桜山2丁目■交通
・京急逗子線「逗子・葉山」駅 徒歩13分
・JR横須賀線「逗子」駅 徒歩15分
類似物件検索
逗子市桜山 海が近くの物件海辺の暮らし専門店「湘南海辺不動産」
#海辺の暮らし #湘南 #逗子 #桜山 #不動産 #新築戸建て #海が近い #横須賀線 #逗子駅



